Mayfield Road, Thornton Heath, CR7
Guide Price £475,000 – Freehold
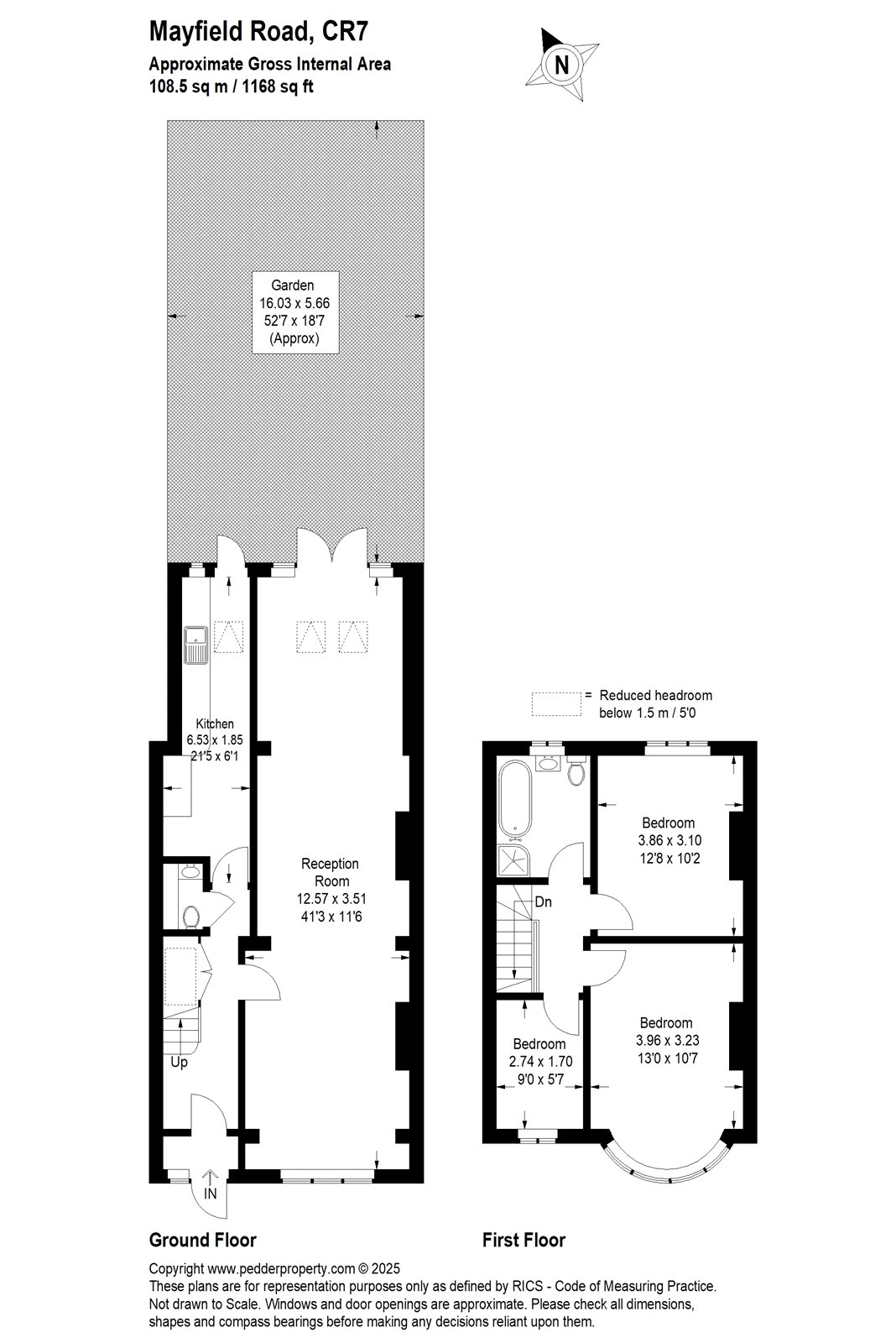
This well-presented three-bedroom terraced house, located on a quiet residential street, offers excellent proportions throughout. The property features a spacious living room, a fully fitted kitchen, and a convenient downstairs WC. Further benefits include no onward chain and gas central heating.
Property overview
Everything you need to know about the property
LOCATION
GUIDE PRICE £475,000-£500,000
Offered to the market chain free is this delightful three-bedroom terraced house, located in the sought-after area of Thornton Heath, is presented in excellent condition throughout. With a warm and inviting atmosphere, this home offers a comfortable and modern living space.
The property boasts a well-proportioned through lounge with plenty of natural light, providing a tranquil space to relax and unwind. The fully fitted kitchen, offering modern appliances, ample storage, and space for family dining, making it a perfect area for entertaining.
Upstairs, you’ll find three spacious bedrooms, each finished to a high standard.The family bathroom features a three-piece suite.
The rear garden is a real highlight of this home, offering a private, peaceful outdoor space to enjoy. Whether you’re looking to garden, entertain, or simply relax, this charming private garden is perfect for all occasions.
Located in the heart of Thornton Heath, this property is well-connected with local amenities and public transport links, making it an ideal choice for those seeking convenience and comfort.
Get in touch to schedule a viewing
Your perfect home is just a phone call away
Whether you’re looking to buy or rent, our team of dedicated estate agents are here to help make it happen. We’re passionate about helping you find your perfect home, and we’re always available to answer any questions you may have about this property or the home-searching process in general. So whether you’re a first-time renter, a seasoned buyer, or just looking to move into your next dream home, we’re here to help.
To arrange a viewing, simply click the button below to view our branch contact details. From there, you can get in touch with us via phone, email, or in-person visit. We’ll work with you to schedule a viewing that fits your schedule, so you can experience the property for yourself and see if it’s the right fit for you.
Don’t let this opportunity slip away – get in touch with us today and let’s make your property dreams a reality.

