Grange Road, London, SE19
£550,000 – Freehold
This spacious and well-appointed 1930s mid-terrace family home offers a perfect blend of character and modern living, ideally located in a sought-after SE19 location and within easy access of Grangewood Park.
Property overview
Everything you need to know about the property
LOCATION
This spacious and well-appointed home offers a perfect blend of character and modern living, ideally located in a sought-after SE19 location.
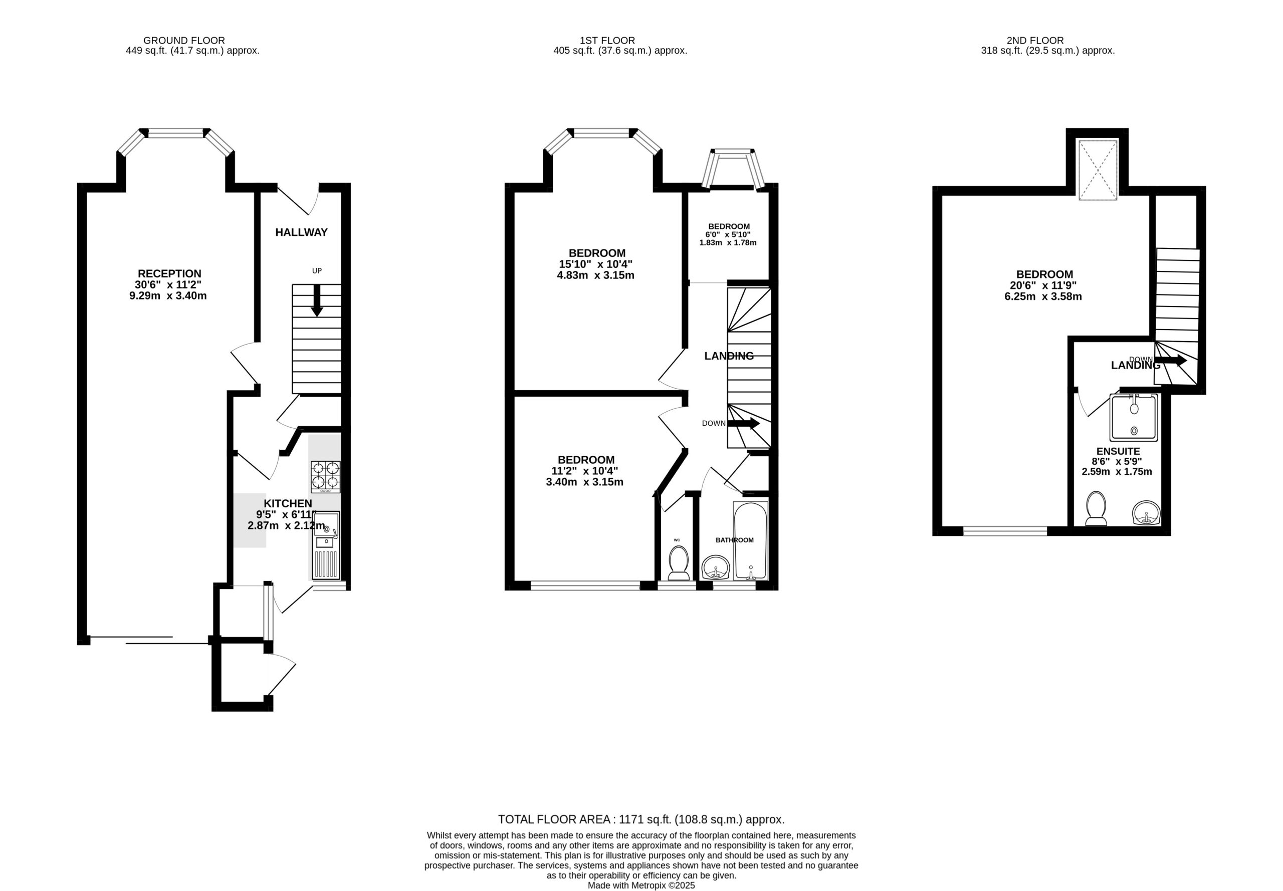
The property features three generous double bedrooms, a versatile box room ideal for a home office or nursery, and a well-proportioned master bedroom complete with en-suite. Bright and airy throughout, the home provides excellent space for families or professionals.
The ground floor boasts a stylish open-plan living/dining area, ideal for entertaining, along with a separate galley kitchen diner that offers additional space for family dining and day-to-day living.
To the rear, a mature private garden provides a tranquil outdoor space — perfect for relaxing, gardening, or summer gatherings.
Located in a desirable residential area, the property is within easy reach of local schools, amenities, and excellent transport links into central London.
DIRECTIONS
Situated in a popular residential pocket of SE19, this home benefits from a fantastic location that combines peaceful surroundings with excellent access to local amenities, green spaces, and vibrant community life.
You’re just a short stroll from some of South London’s most loved parks. South Norwood Lake & Grounds (0.6 miles) offers scenic walking trails, tennis courts, and a boating lake — ideal for weekend relaxation. Crystal Palace Park (1.2 miles) is also within easy reach, offering expansive grounds, a children’s farm, dinosaur sculptures, and sports facilities.
Nearby Crystal Palace Triangle is known for its independent shops, bustling cafés, trendy restaurants, and artisan bakeries. For day-to-day essentials, there are local supermarkets, convenience stores, and takeaways just minutes away.
The area benefits from several fitness options, including local gyms and yoga studios. The South Norwood Leisure Centre offers a swimming pool and fitness classes, while Crystal Palace National Sports Centre is a short drive away.
With Crystal Palace, Thornton Heath, and Norwood Junction stations all within approx. 1 mile, the property offers convenient rail links to London Bridge, Victoria, and Canada Water via Overground and National Rail. Regular bus routes along Grange Road also provide easy access to surrounding areas.
With a number of well-regarded primary and secondary schools nearby, as well as parks and local clubs, the area is a great choice for families looking for both space and community.
TRANSPORT
Thornton Heath Station – 0.9 miles
Crystal Palace Station – 1.1 miles
Norwood Junction Station – 1.1 miles
SCHOOLS – INFANTS & PRIMARY
Cypress Primary School – 0.53 miles
All Saints CofE Primary School – 0.73 miles
Heavers Farm Primary School – 0.68 miles
SCHOOLS – SECONDARY & COLLEGE
Harris City Academy Crystal Palace – 0.55 miles
Harris Academy South Norwood – 0.92 miles
The Norwood School – 0.98 miles
St Joseph’s College – 1.08 miles
Norbury High School for Girls – 0.99 miles

Get in touch to schedule a viewing
Your perfect home is just a phone call away
Whether you’re looking to buy or rent, our team of dedicated estate agents are here to help make it happen. We’re passionate about helping you find your perfect home, and we’re always available to answer any questions you may have about this property or the home-searching process in general. So whether you’re a first-time renter, a seasoned buyer, or just looking to move into your next dream home, we’re here to help.
To arrange a viewing, simply click the button below to view our branch contact details. From there, you can get in touch with us via phone, email, or in-person visit. We’ll work with you to schedule a viewing that fits your schedule, so you can experience the property for yourself and see if it’s the right fit for you.
Don’t let this opportunity slip away – get in touch with us today and let’s make your property dreams a reality.

