Bennetts Avenue, Croydon, CR0
Offers in Excess of £900,000 – Freehold
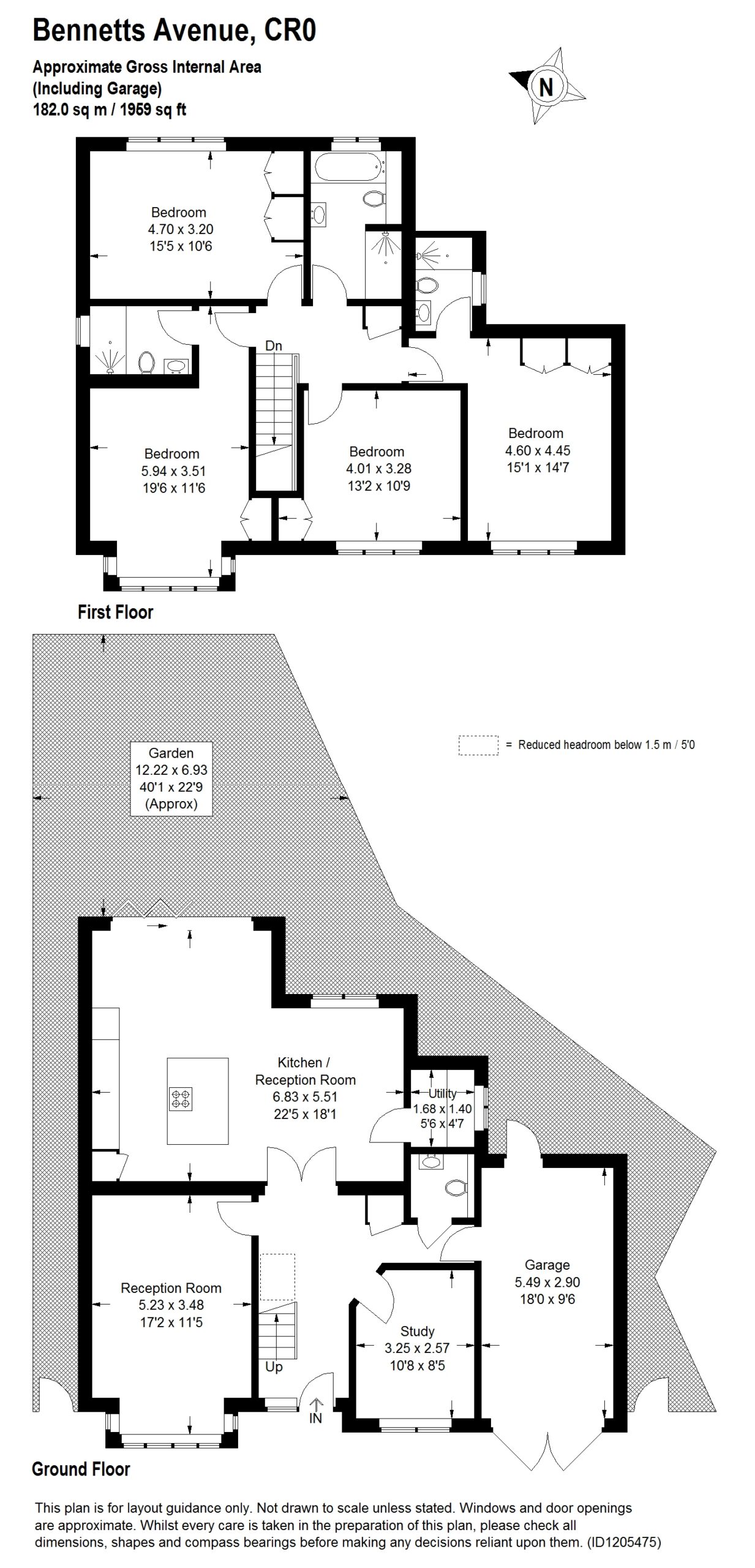
This stunning four bedroom detached house located on the popular South side of Shirley is only 8 years old!<br>The property is presented in amazing condition and benefits from ample parking, a huge kitchen diner, four double bedrooms, three bathrooms and a garage!
Property overview
Everything you need to know about the property
LOCATION
This stunning detached family home is nestled on the popular south side of Shirley on a quiet road that still has fantastic transport links as well as great access to well reguarded local schools.
The property itself benefits from having a huge driveway with parking for four or more cars as well as a garage space.
The interior is also presented in amazing condition having only been built 8 years ago, and the owner has managed to keep it in a brand new condition.
Downstairs there is a large living room perfect for settling down of an evening, but also the hub of the house, a large kitchen diner space perfect for entertaining overlooking the lovely rear garden through large bi-fold patio doors. The downstairs also benefits from having a utility room, a useful wc and a study that is great for working from home.
Upstairs the property features four generous double bedrooms and a large four piece family bathroom. As well as this two of the bedrooms have modern en suite shower rooms.
Other benefits include side access, and a well maintained rear garden.
Don’t miss out, call now to arrange a viewing!
DIRECTIONS
Bennetts Avenue is located in between Bennetts Way and Shirley Way, just seconds away from the 194 bus route.
TRANSPORT
West Wickham 1.3 miles
Eden Park 1.4 miles
Elmers End 1.8 miles
Hayes (Kent) 2.2 miles
East Croydon 2.3 miles
SCHOOLS – INFANTS & PRIMARY
Harris Primary Academy Benson 360 yards
St John’s CofE Primary School 720 yards
Forest Academy 830 yards
SCHOOLS – SECONDARY & COLLEGE
Shirley High School Performing Arts College 800 yards
Coloma Convent Girls’ School 0.6 miles
Orchard Park High School 0.7 miles
Get in touch to schedule a viewing
Your perfect home is just a phone call away
Whether you’re looking to buy or rent, our team of dedicated estate agents are here to help make it happen. We’re passionate about helping you find your perfect home, and we’re always available to answer any questions you may have about this property or the home-searching process in general. So whether you’re a first-time renter, a seasoned buyer, or just looking to move into your next dream home, we’re here to help.
To arrange a viewing, simply click the button below to view our branch contact details. From there, you can get in touch with us via phone, email, or in-person visit. We’ll work with you to schedule a viewing that fits your schedule, so you can experience the property for yourself and see if it’s the right fit for you.
Don’t let this opportunity slip away – get in touch with us today and let’s make your property dreams a reality.

