

Wandle Road
Land Adjacent
Wandle Road
Located on Wandle Road, the property benefits from excellent access to local shops and amenities. Hackbridge mainline station (Zone 4) is just a short walk away, providing fast and frequent services into Central London. Nearby green spaces include Beddington Park and the Wandle Trail.
The site is offered to the market with extant planning consent for the construction of a detached two-storey office building. Following a recent downgrade of the site’s Flood Risk classification, residential development may now be considered, subject to obtaining the necessary planning consent.
The land is currently let for £8,100.00 annually.
Agent’s Notes: Prospective purchasers should note that buyer’s fees apply.
Arrange Viewing
Land Adjacent Wandle Road
Why Choose Wandle Road
Located on Wandle Road, the property benefits from excellent access to local shops and amenities. Hackbridge mainline station (Zone 4) is just a short walk away, providing fast and frequent services into Central London. Nearby green spaces include Beddington Park and the Wandle Trail.

Arrange Viewing
Get exclusive updates
Land Adjacent Wandle Road
Pricing
| Floorplan | Price | Bedrooms | SQ FT (Approx) | |
|---|---|---|---|---|
|
£175,000 O.I.E.O | 840 |
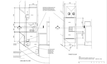
Floorplan
Make an Enquiry
Area guide
Addiscombe
Welcome to Lower Addiscombe, a charming and lively neighbourhood located in the London Borough of Croydon. With its tree-lined streets, beautiful parks and green spaces, and easy access to central London, Lower Addiscombe is the perfect place to call home for those looking for a peaceful suburban lifestyle with all the conveniences of city living. Whether you’re a young professional, a growing family, or looking to retire in style, Lower Addiscombe has something for everyone.
Explore AddiscombeArea guide
Anerley
Welcome to Anerley, a vibrant and diverse neighbourhood located in the south-east of London. With its beautiful parks, wide range of local shops and restaurants, and excellent transport links to central London, Anerley is the perfect place to call home for those seeking a balance between urban and suburban living. Whether you’re a young professional, a growing family, or looking for a friendly and welcoming community, Anerley has something for everyone.
Explore AnerleyArea guide
Caterham
Welcome to Caterham, a charming town nestled in the picturesque North Downs of Surrey. With its stunning countryside views, rich history and heritage, and excellent amenities, Caterham offers the perfect balance of rural and urban living. Whether you enjoy outdoor activities, exploring historic landmarks, or easy access to London and other major cities, Caterham has something for everyone. Contact our estate agency today to learn more about the properties available in this beautiful town and find your perfect home in Caterham.
Explore CaterhamArea guide
Chipstead
Nestled in the heart of the Surrey Downs, Chipstead is a charming and picturesque village that offers residents the perfect blend of natural beauty, rich history, and excellent amenities. With its rolling hills, stunning woodland, and excellent outdoor activities, including hiking and cycling, Chipstead is a fantastic place to call home for those seeking a tranquil and idyllic lifestyle. The village also boasts several highly-rated schools, a range of local shops, cafes, and restaurants, and easy access to major transportation links, making it an ideal choice for families and commuters alike.
Explore ChipsteadArea guide
Coulsdon
Welcome to Coulsdon, a charming town nestled in the southern suburbs of London. With its beautiful parks, excellent schools, and range of local amenities, Coulsdon offers residents the perfect combination of natural beauty and urban convenience. From its historic landmarks to its bustling town centre, Coulsdon has something to offer everyone. With great transportation links to London and beyond, Coulsdon is a fantastic place to call home.
Explore CoulsdonArea guide
Croydon Central
Central Croydon is the vibrant heart of one of London’s largest and most diverse boroughs. Located just 10 miles south of central London, this bustling town centre offers a fantastic range of shopping, dining, and entertainment options. It’s also home to several distinct neighbourhoods, each with its own unique character and charm. From affluent residential areas to multicultural communities, Central Croydon has something for everyone. With excellent transport links, great schools, and a rich cultural heritage, it’s no wonder that Central Croydon is such a popular destination for residents and visitors alike.
Explore Croydon CentralArea guide
Crystal Palace
Crystal Palace is a vibrant and historic area located in South East London, known for its iconic park and stunning views over the city. With its mix of Victorian and Edwardian architecture, independent shops and restaurants, and excellent transport links, it has become a sought-after location for both families and young professionals. Whether you’re looking for a bustling nightlife or a peaceful escape, Crystal Palace has something to offer for everyone.
Explore Crystal PalaceArea guide
Dulwich
Located in the south of London, Dulwich is a picturesque and historic area that boasts a unique blend of tranquillity and vibrancy. Surrounded by stunning parks and green spaces, the area is renowned for its attractive architecture, independent shops, and top-quality schools. With excellent transport links to central London and a range of cultural and recreational activities, Dulwich is a highly desirable location for families, young professionals, and retirees alike. Whether you’re looking for a peaceful escape from the bustle of the city or a lively community with plenty to see and do, Dulwich has something to offer everyone.
Explore DulwichArea guide
East Croydon
Welcome to East Croydon, a vibrant and diverse area located in the south of London. With excellent transport links, local amenities, and a rich cultural history, East Croydon is a popular destination for both young professionals and families. Housing options include Victorian and Edwardian terraced houses, modern flats and apartments, and new build developments. The area is also home to several excellent schools, including Coloma Convent Girls’ School, St Mary’s Catholic High School, and Croydon High School.
Explore East CroydonArea guide
Gipsy Hill
Welcome to Gipsy Hill, a vibrant and eclectic area located in the south of London. With its mix of independent shops, cafes, and restaurants, Gipsy Hill offers a unique and diverse experience for residents and visitors alike. The area is also home to several green spaces, including the picturesque Norwood Grove and Crystal Palace Park, offering ample opportunities for outdoor recreation. With excellent transport links and a thriving community, Gipsy Hill is a popular destination for young professionals and families looking for an alternative to the hustle and bustle of central London.
Explore Gipsy HillArea guide
Kenley
Welcome to Kenley, a picturesque and tranquil area located in the southern part of London. Surrounded by lush greenery and beautiful open spaces, Kenley is known for its peaceful and friendly community atmosphere, making it a popular choice for families and nature enthusiasts. With its excellent transport links, range of local amenities, and top-rated schools, Kenley is a wonderful place to call home.
Explore KenleyArea guide
Park Hill
Park Hill is a residential area located in the south of Croydon, London. The area is known for its beautiful green spaces, including the Park Hill Recreation Ground and the nearby Lloyd Park. Park Hill offers a range of housing options, including spacious Victorian and Edwardian homes and modern apartments, making it a popular location for families and young professionals. With excellent transport links and a variety of local amenities, Park Hill is a vibrant and convenient place to call home.
Explore Park HillArea guide
Penge
Penge is a vibrant and diverse area located in the southeast of London, situated between Beckenham and Crystal Palace. With its excellent transport links, range of local amenities, and rich cultural history, Penge is a popular destination for young professionals and families alike. The area offers a mix of Victorian and Edwardian properties, modern apartments, and new developments, with a range of housing options to suit different lifestyles and budgets. Whether you’re looking for a thriving high street, beautiful green spaces, or easy access to central London, Penge has something for everyone.
Explore PengeArea guide
Purley
Purley is a desirable area located in the borough of Croydon, known for its tranquil and scenic surroundings. The area offers a diverse range of housing options, including detached and semi-detached homes, flats, and apartments, with a mix of new-build and period properties. Some of the most desirable neighborhoods in Purley include Webb Estate and Purley Bury. Purley has excellent transportation links to London, and a range of amenities, including shops, restaurants, and parks, making it an ideal place to live for families, professionals, and retirees alike.
Explore PurleyArea guide
Shirley
Shirley is a suburban area located in the London Borough of Croydon, situated approximately 10 miles south of Central London. It is a peaceful and family-friendly neighbourhood with a range of housing options to suit different lifestyles and budgets. The area is well-connected with excellent transport links, making it easy to reach other parts of London. Shirley is also home to several highly-regarded primary and secondary schools, as well as a variety of amenities such as shops, restaurants, and parks, providing residents with everything they need in one convenient location.
Explore ShirleyArea guide
South Norwood
South Norwood is a vibrant and diverse neighbourhood located in the London Borough of Croydon. The area is characterised by its leafy streets, quaint cafes, and historic buildings. It is a great location for those who appreciate a mixture of city and suburban living, with excellent transport links to central London and plenty of green spaces nearby. With a strong sense of community, South Norwood has plenty of amenities for all ages, making it an ideal place to call home.
Explore South NorwoodArea guide
Sydenham
Sydenham is a leafy suburb situated in the southeast of London, with a rich history and a strong sense of community. Its charming architecture, green spaces, and excellent amenities make it an attractive destination for families, young professionals, and retirees alike. The area is known for its peaceful and relaxed atmosphere, providing a welcome escape from the hustle and bustle of the city. With excellent transport links, a range of excellent schools, and a vibrant community, Sydenham is a popular choice for those seeking a suburban lifestyle within easy reach of London’s vibrant cultural and commercial offerings.
Explore SydenhamArea guide
Thornton Heath
Thornton Heath is a vibrant and diverse area located in the London Borough of Croydon. The area has a rich history and is home to a diverse mix of cultures and communities, giving it a unique character and atmosphere. With its convenient location and affordable housing options, Thornton Heath has become an increasingly popular choice for those looking to settle in the London area. From its local parks and green spaces to its bustling high street and array of cultural events, there’s always something to discover in Thornton Heath.
Explore Thornton HeathArea guide
Waddon
Located in the south of Croydon, Waddon is a suburban area with a mix of residential and commercial properties. Its convenient location near the M25 and Gatwick Airport makes it a popular choice for commuters, while its relatively affordable housing options make it attractive for families and young professionals. Waddon also boasts a number of parks and green spaces, as well as a range of shops and restaurants, providing residents with a balanced mix of urban and suburban living.
Explore WaddonArea guide
Warlingham
Warlingham is a charming village located in the Tandridge District of Surrey, South East England. Known for its idyllic setting and stunning views of the surrounding countryside, it offers a peaceful and rural lifestyle while still being within easy reach of major cities. The village is home to a range of local shops, restaurants, and cafes, as well as several schools and recreational areas. With a strong sense of community and a variety of events and activities held throughout the year, Warlingham is a popular place to live for families and those looking for a slower pace of life.
Explore WarlinghamArea guide
West Croydon
West Croydon is a bustling and diverse neighborhood located in the London Borough of Croydon. It is known for its excellent transportation links to central London and other parts of the city, as well as its vibrant urban lifestyle. With a range of housing options, a variety of amenities, and a strong sense of community, West Croydon is a popular choice for young professionals and families looking for a lively and convenient place to call home. Whether you’re interested in culture, nightlife, or outdoor activities, West Croydon has something for everyone.
Explore West CroydonArea guide
West Norwood
West Norwood is a charming and diverse neighborhood located in the London Borough of Lambeth. It is known for its peaceful and suburban lifestyle, while still being conveniently located for easy access to central London. With its mix of Victorian and Edwardian homes, modern developments, and green spaces, West Norwood offers a unique blend of history and modernity. Whether you’re interested in arts and culture, outdoor activities, or simply enjoying the relaxed suburban lifestyle, West Norwood has something for everyone.
Explore West NorwoodArea guide
Whyteleafe
Whyteleafe is a small and picturesque village located in the Tandridge district of Surrey, just south of London. It is known for its tranquil and rural setting, with stunning countryside views and easy access to nearby towns and cities. Despite its peaceful location, Whyteleafe offers a range of amenities, including independent shops, restaurants, and cafes, as well as excellent transportation links to central London and other parts of Surrey. Whether you’re interested in outdoor activities, a relaxed suburban lifestyle, or easy access to nearby towns and cities, Whyteleafe has something for everyone.
Explore WhyteleafeArea guide
Streatham
Streatham is a lively and diverse area located in the south-west of London. It boasts a rich history and a vibrant cultural scene, with a variety of independent shops, cafes, and restaurants, as well as several green spaces, such as Tooting Bec Common and Streatham Common. The area offers a diverse range of housing options, from traditional Victorian and Edwardian homes to modern flats and new-build developments. With excellent transportation links, good schools, and a strong sense of community, Streatham is a popular location for families, young professionals, and students alike.
Explore StreathamArea guide
Woodcote
Woodcote is a beautiful and affluent village located in the borough of Croydon, just south of London. Known for its peaceful and picturesque setting, it offers residents a tranquil lifestyle within easy reach of nearby towns and cities. The village is characterised by its beautiful green spaces, independent shops, restaurants, and cafes, and excellent schools. With great transportation links and a strong sense of community, Woodcote is a wonderful place to call home for those seeking a peaceful and comfortable lifestyle.
Explore Woodcote





















