
Northwood Avenue
Consented Development Opportunity With Planning Granted For A Brand New Scheme Of 5 Apartments
Northwood Avenue
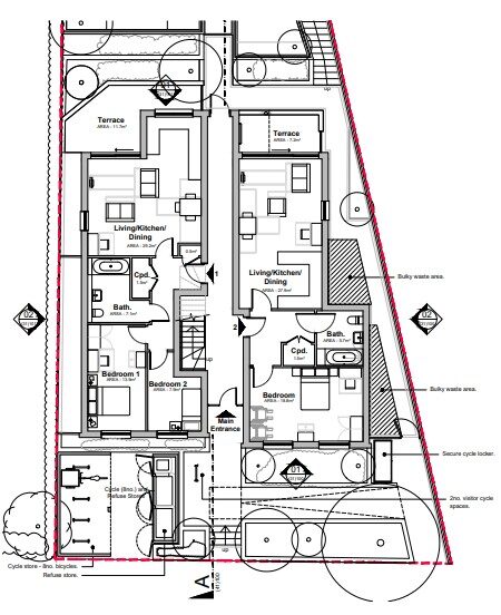
This consented development opportunity with planning granted to demolish existing buildings and construct a brand new scheme of 5 apartments each with their own private outside space.
The breakdown of the units consists of 2 x 1 Bedroom apartments, 2 x 2 Bedroom and 1 x 3 Bedroom, plot size is 473 sqm
Stage 1
Planning
Complete
Stage 2
Building
Not Complete
Stage 3
Final stages
Not Complete
Stage 4
Complete
Not Complete
Consented Development
Why Choose Northwood Avenue
Located within in a residential area providing good access to amenities
Beaumont Primary School (Outstanding) is just 0.2 miles away, with several other well rated schools within a mile, Reedham rail station is approximately 0.3 miles away and provides convenient transport links.
Local shopping is available at Purley High Street, 0.6 miles distant, while larger retail options can be found at Purley Cross Retail Park, about a mile away.
Get exclusive updates
Be the first to hear about new developments and releases.
NEW HOME
Pricing & Availability
| Floorplan | Price | Bedrooms | SQ FT (Approx) | |
|---|---|---|---|---|
|
SSTC | 1 – 3 | 5091 | |
|
||||
|
||||
|
||||
|
||||
|






















