Thornhill Road
Step Inside A Home Designed For Modern Living
Thornhill Road, Croydon, CR0
Launching Summer 2025
Superb new development having been tastefully converted and built to compliment the surrounding homes on this quiet side road offering a rare blend of quiet living and urban convenience.
Comprising four newly converted and four newly built apartments with all ground floor units having access to rear gardens and offering high specification throughout and a an attached three bedroom family home.
1 & 2 Bedroom Apartments
3 Bedroom Family Home
Private Gardens To Ground Floor Apartments And Family Home
High Specification
Close To Croydon Town Centre
Stage 1
Planning
Complete
Stage 2
Building
Complete
Stage 3
Final stages
In Progress
Stage 4
Complete
Not Complete
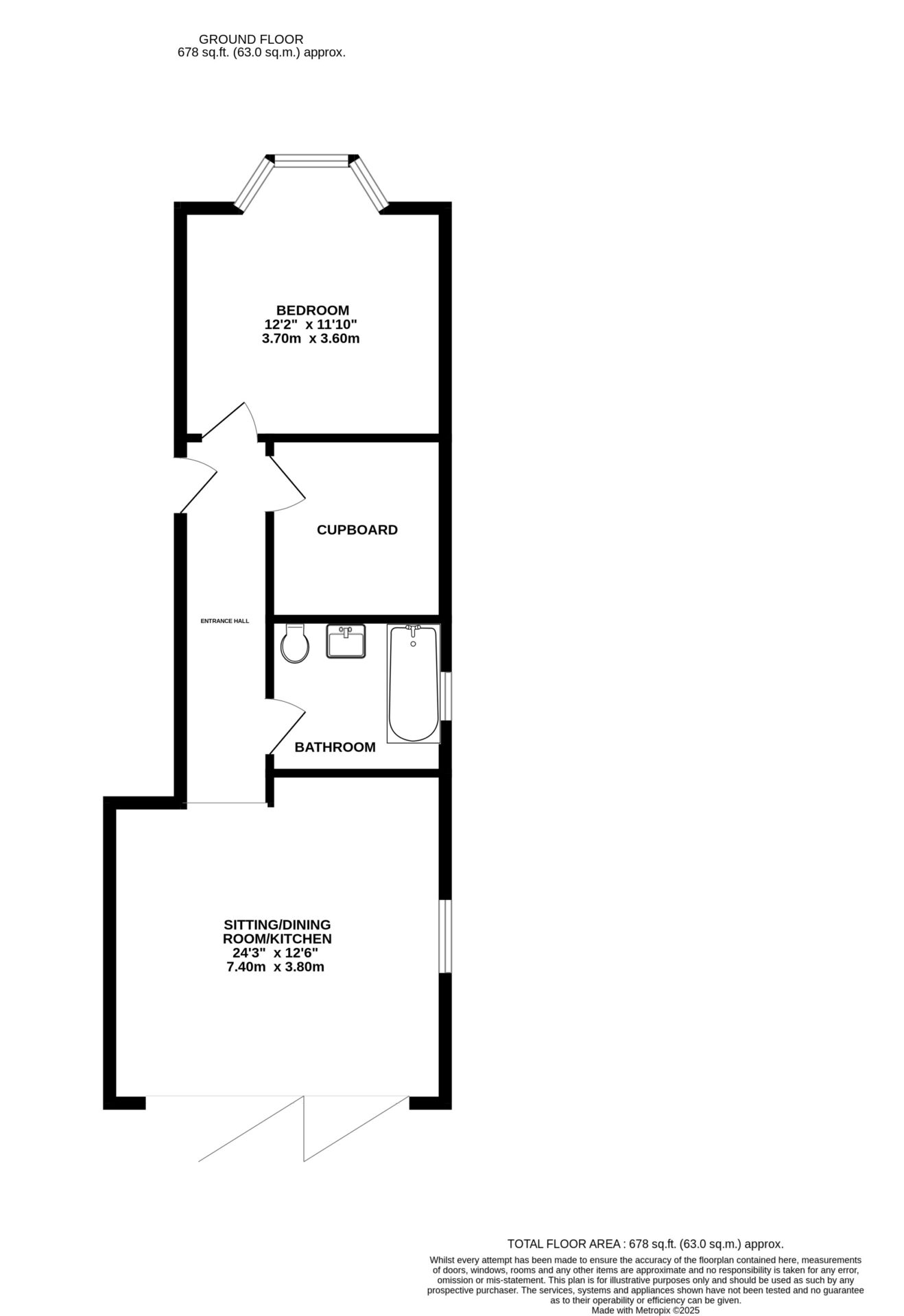
| Floorplan | Price | Bedrooms | SQ FT (Approx) | |
|---|---|---|---|---|
|
£325,000 | 1 | 676 | |
|
£350,000 | 2 | 676 | |
|
£375,000 | 2 | 667 | |
|
£250,000 | 1 | 398 | |
|
£375,000 | 2 | 687 | |
|
£350,000 | 1 | 581 | |
|
£250,000 | 1 | 409 | |
|
£350,000 | 2 | 624 | |
|
£600,000 | 3 | 1044 |
New Home
Why Choose Thornhill Road?
- Peaceful Neighbourhood: The property is located on a quiet side road, providing a serene and relaxed living environment. Croydon’s infrastructure is excellent. In addition to the fast train from East Croydon, you have tram links, major bus routes and a choice of another train line at West Croydon station which is similar distance from the property.
- Convenient Location: Within walking distance of Croydon Town Centre Yet Offering A Rear Blend Of Quiet Living And Urban Convenience.
- Flexible Living Space: Family Home offering three bedrooms, apartments 1 or 2 bedrooms, residents have the flexibility to choose a home that best suits their family size and lifestyle preferences, ensuring comfort and adaptability for years to come.
- Bespoke fitted and tiled bathrooms featuring a bath with separate TRV shower and hand held unit, floating vanity unit and Grohe hidden concealed cistern, fitted kitchens with 2 tone units and fitted branded appliances.
Get exclusive updates
Be the first to hear about new developments and releases.






















